Zvolte si typ nemovitosti

Nemovitosti

Silvie Mikešová

Telefon

Telefon:

774 289 259

3D prohlídka nemovitosti

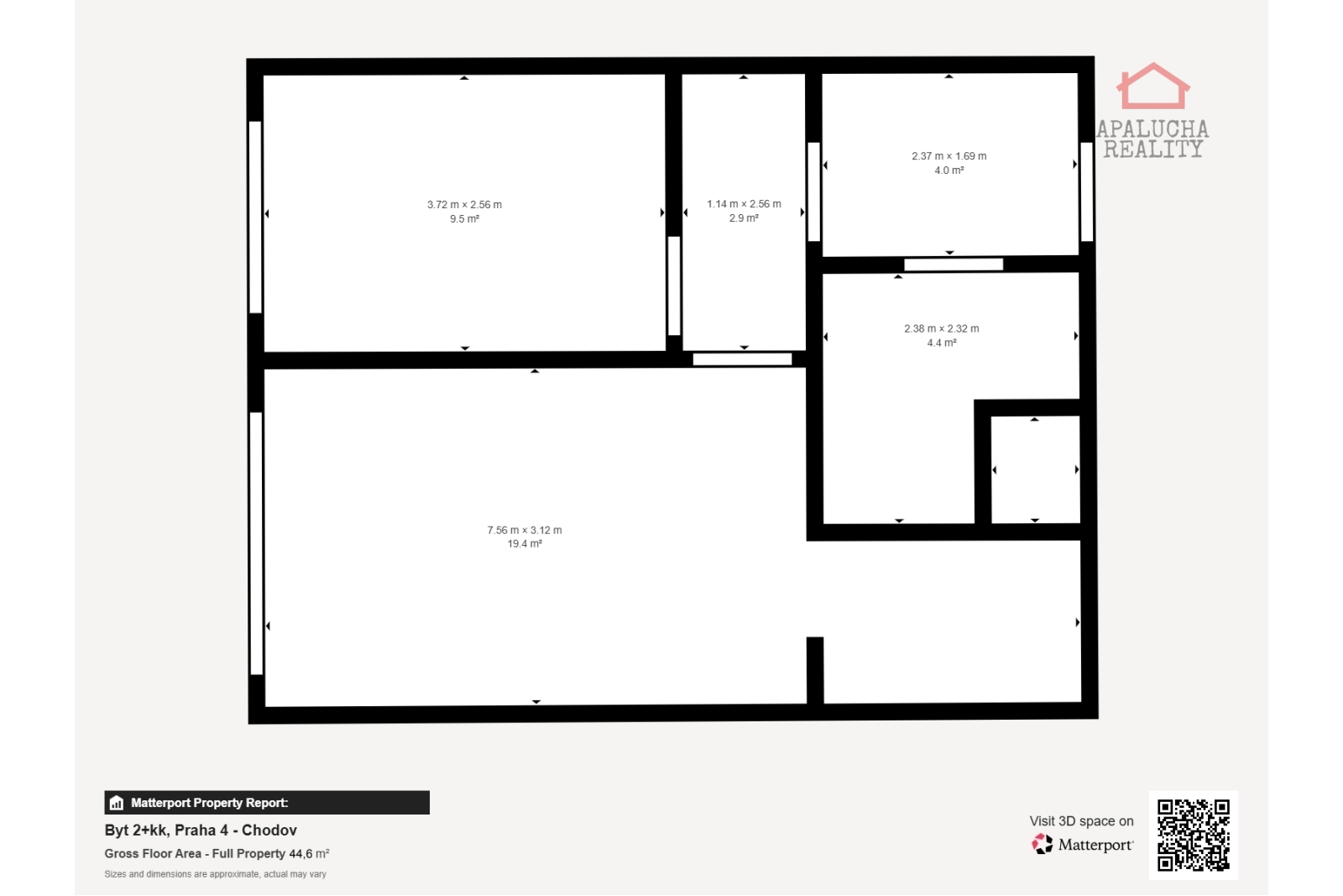
PRAHA 11 - CHODOV, BYT 2+kk, 45 m²

Cena v RK

Popis nemovitosti

APALUCHA REALITY Vám exkluzivně nabízí k prodeji prostorný byt 2+kk o výměře 44,6 m² se sklepní kójí 3 m², který se nachází v 9. patře udržovaného panelového domu s výtahem v ulici Na sádce 1748/3, Praha 11 - Chodov.
Dům prošel v roce 2011 revitalizací, kdy byl zateplen a vyměněny okna za plastová, v roce 2016 byly instalovány nové výtahy a roce 2022 byly rekonstruovány společné prostory a střecha. Samotný byt byl rekonstruován v roce 2010, kdy bylo vyzděno jádro s novými obklady a elektrickými rozvody. Bytový dům je situován v zástavbě rodinných domů v dostatečné vzdálenosti od rušných částí města, což poskytuje klidné bydlení.
Byt je v současné době pronajímán slušným nájemníkům, nájemní smlouva je vypovězena ke konci února, ale v případě zájmu je možné s nájmem pokračovat, takže se nabízí investiční příležitost.
Lokalita nabízí klidné bydlení s dobrou dopravní dostupností MHD (metro C, Opatov cca 300m.), nájezd na dálnici D1, kompletní občanskou vybavenost v okolí, dostatek zeleně pro volnočasové aktivity a bezproblémové parkování před domem bez modré zóny. V blízkosti se nachází Chodovská tvrz, která patří mezi zajímavé historické památky v Praze a je zároveň jediná pamětihodnost a kulturní památka na Jižním Městě svého druhu, která nabízí svým návštěvníkům koncerty, výstavy, divadlo a kino. Největší nákupní centrum v Česku Westfield Chodov je v dochozí vzdálenosti cca 15 minut. Necelé dva kilometry vzdálený multifunkční sportovní areál Jedenáctka nabízí plavecký bazén, vodní svět s tobogánem, wellness sauny a sportovní halu.
Nemovitost není zatížena žádným zástavním právem, tudíž garantujeme rychlý převod na nového majitele.
Financování možné z vlastních zdrojů nebo úvěrem, se kterým Vám rádi pomůžeme.

Balkón

Ne

Bezbariérový

Ne

Datum poslední úpravy

13.1.2026

Subtyp nemovitosti

2+kk

Dopravní dostupnost

MHD
Příměstská doprava
Silnice
Dálnice
I. třída
II. třída
Metro
Vlak
Letiště

Elektřina

230V
400V

Vydaný certifikát PENB

B - Velmi úsporná

ID nemovitosti

26A192

Infrastruktura

škola
restaurace
doktor
školka
pošta
kulturní zařízení
obchodní centrum
obecní úřad
koupaliště

Kanalizace

Veřejná kanalizace

Komunikace

Asfaltová

Konstrukce

Panelová

Městská část

Chodov

Nemovitost přidána dne

7.1.2026

Operace

Prodej

Plocha sklepa

3 m2

Plocha užitná

45 m2

Stav objektu

Velmi dobrý

Typ certifikátu PENB

č. 264/2020 Sb.

Typ nemovitosti

Byt

Ulice

Na sádce

Umístění objektu

Klidná část obce

Číslo domu

3