Zvolte si typ nemovitosti

Nemovitosti

Petr Trojan

Telefon

Telefon:

776 707 306

Videoprohlídka nemovitosti

3D prohlídka nemovitosti

MALOTICE, HISTORICKÁ USEDLOST 189 m², POZEMEK 1028 m²

10 798 000,-

Popis nemovitosti

APALUCHA REALITY Vám exkluzivně nabízí luxusní historickou usedlost ze 14. století po velmi zdařilé rekonstrukci. Nachází se v klidné části obce Malotice obklopena přírodou, není památkově chráněna a prodává se včetně kompletního vybavení.
Neuvěřitelné kouzlo této nemovitosti na Vás dýchne okamžitě po vstupu do haly spojené s kuchyní a obývacím pokojem, kde nechybí ani krb a ranní kávu si můžete vychutnat přímo na břehu rybníka, nebo na terase s vířivkou.
Náročná rekonstrukce proběhla v zámeckém stylu s dokončením v roce 2021. Rekonstrukcí prošel doslova každý kousek a součást domu. Pozornost byla věnována každé spáře mezi cihlami, obnoveny byly klenby se zvýrazněním kamenných částí stavby, což zvýrazňuje historický potenciál usedlosti. Nová plastová okna s trojskly udrží teplo jak z podlahového vytápění, tak z krbu, ve kterém si zajisté budete s chutí v zimních večerech zatápět. Vytápění je řešeno automatickým kotlem na pelety a uhlí, případně kusové dřevo s podlahovým rozvodem. V obývacím pokoji je možnost zatápění v krbu a v kuchyni v kachlových kamnech a samozřejmě se nezapomnělo ani na nové krovy, izolaci a novou střešní krytinu.
Přímo z ložnice je vstup na zastřešenou terasu a zimní zahradu, kterou si již uděláte k obrazu svému sami.
Zahrada disponuje zatravněnou částí s malým jezírkem a množstvím designových prvků, které jsou patrné z fotografií. U domu je umístěn kotec pro čtyřnohého přítele.
K dispozici je garáž, kam lze zaparkovat až dvě vozidla a další možností je venkovní stání.
Dům má tři komíny s pravidelnými revizemi. Teplou vodu zajišťuje 200 l bojler. Dům je zároveň velmi udržitelný s vlastním zdrojem pitné vody z kopané studny, hluboké 9 metrů a užitkové vody z druhé studny. Výhledově se v obci plánuje obecní vodovod.
V současné chvíli je odpad řešen vlastním septikem s trativodem.
Dům je zabezpečen EZS a napojen na pult centrální ochrany s kamerovým systémem se záznamem. V celém domě je rozvod datové sítě a Wi-Fi.
Vjezdová brána a garážová vrata vč. EZS jsou dálkově ovládány jedním ovladačem.
Historie domu je datována do 14. století, kdy byla rovněž postavena sousední gotická vodní tvrz, kterou postavili kutnohorští měšťané, ze které se dochovala již jen věž.
Veškerá občanská vybavenost je v nedaleké, 5 km vzdálené Kouřimi. Praha je vzdálena 50 km, Kolín a Kutná Hora 22 km.
Jedná se o exkluzivní nemovitost, která nabízí jak potenciál krásného bydlení s historickým nádechem, tak i značnou komerční hodnotu.

Balkón

Ne

Bezbariérový

Ano

Datum poslední úpravy

26.11.2025

Subtyp nemovitosti

Rodinný dům

Dopravní dostupnost

MHD
Příměstská doprava
Silnice
I. třída
II. třída

Elektřina

230V
400V

Vydaný certifikát PENB

E - Nehospodárná

ID nemovitosti

25A186

Kanalizace

Septik
Trativod

Komunikace

Asfaltová

Konstrukce

Smíšená

Nemovitost přidána dne

18.10.2025

Operace

Prodej

Parkovací místa

4

Plocha pozemku

1028 m2

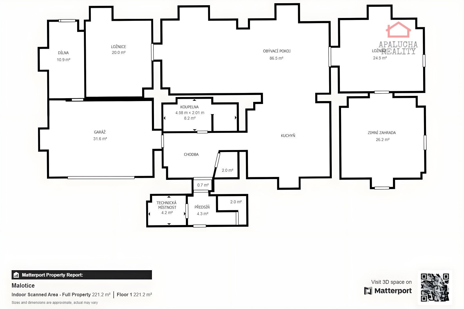
Plocha užitná

189 m2

Stav objektu

Po rekonstrukci

Typ certifikátu PENB

č. 264/2020 Sb.

Typ nemovitosti

Dům, vila

Umístění objektu

Klidná část obce